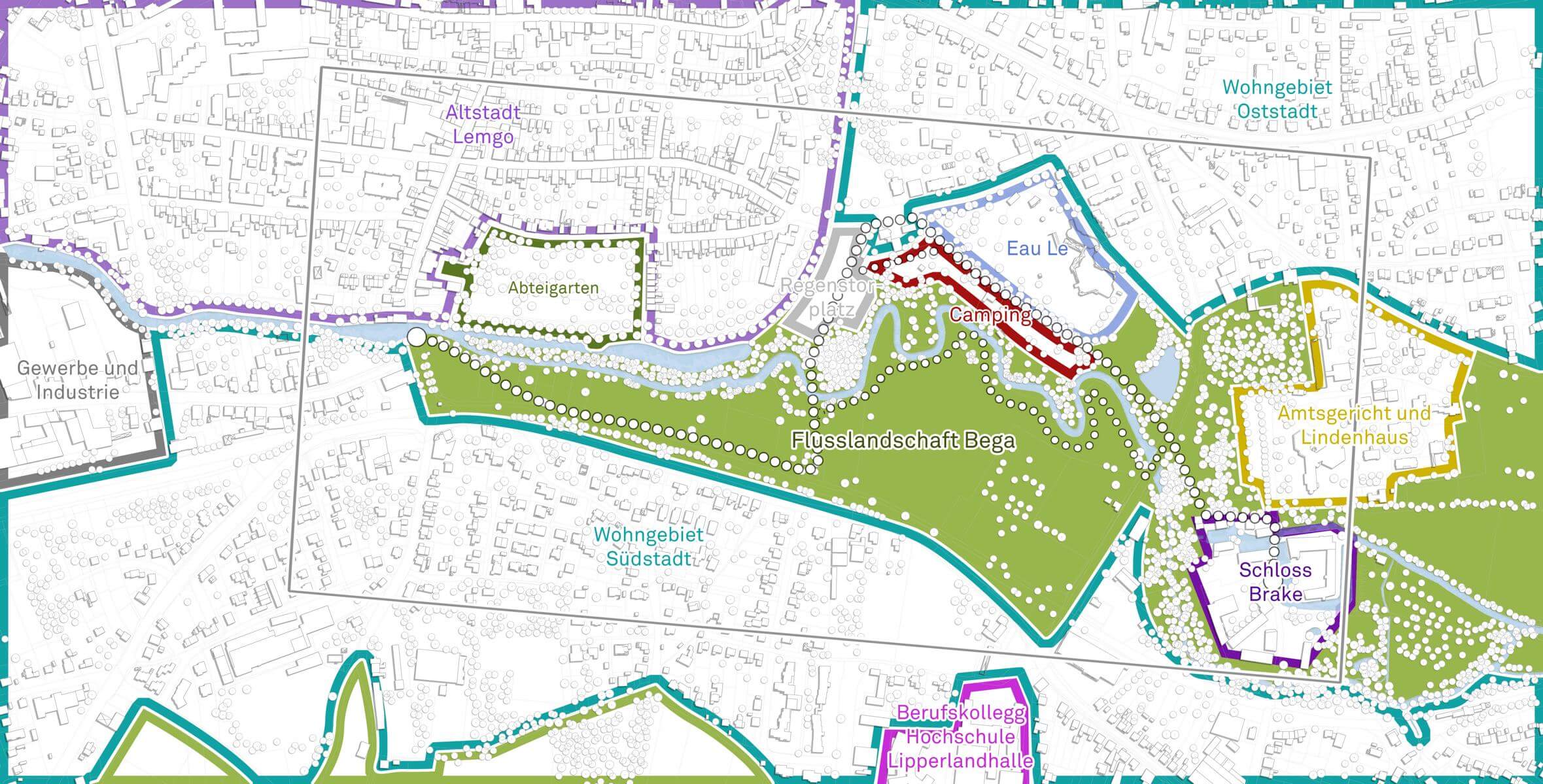
Freiraumkonzept Begaaue, Lemgo

Auf der Hochwasserschutzplanung aufbauend wurde für einen, zwischen historischer Altstadt sowie dem Schloss Brake gelegenen Bega-Abschnitt ein freiraumplanerisches Strukturkonzept entwickelt.
Ziel war die Aufwertung der Aue durch Schaffung attraktiver Erlebnis- und Aufenthaltsbereiche mit landschaftsarchitektonischen und künstlerischen Interventionen. Ein wichtiger Ort in diesem Konzept stellt das Langenbrücker Tor dar.
Darüber hinaus wurden Lösungsansätze für weitere Bereiche mit städtebaulichen Defiziten erarbeitet.