Offenlegung des Eilshauser Bachs, Gemeinde Hiddenhausen, Kreis Herford

Im Anschluss an die Genehmigungsplanung haben wir im Auftrag der Gemeinde Hiddenhausen auch die Bauarbeiten zur Gewässeroffenlegung des Eilshauser Bachs begleitet, die zusammen mit dem Bau eines Bodenretentionsfilters stattfanden.
Im Zuge der Ausführung musste kurzfristig der geplante Gewässerverlauf verlegt werden, um die unerwartet schwierigen Bodenverhältnisse im Bereich des ursprünglichen, verfüllten Bachtals zu umgehen.
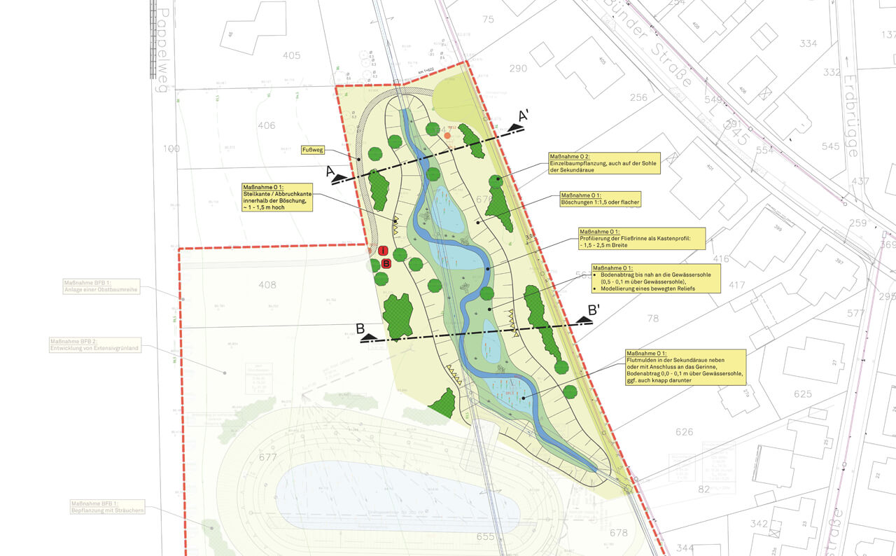
Bei den Baggerarbeiten galt es, die Ausführenden insbesondere für die naturnahe Gestaltung der Sekundäraue zu sensibilisieren. Statt einer planen Sohle erhielt die Sekundäraue ein bewegtes Relief mit Flutmulden, in der das Gewässer zukünftig selbst aus eigener Kraft die weitere Gestaltung übernehmen kann.
Mit der Maßnahme werden jahrzehntelange Beeinträchtigungen des Gewässers durch Verrohrung und vollständige Verfüllung des ursprünglichen Bachtals aufgehoben.